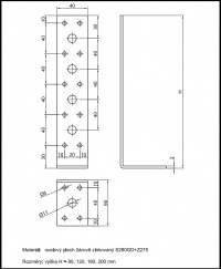
Spojovací kotevní úhelník pozinkovaný, bez prolisu, šíře 40 mm, různé výšky ramen. Speciální úhleník ze silného plechu, v řadě stavebních projektů je používaný jako kotevní.
Díry o pr. 5 mm na hřebík či vrut i o pr. 11 mm pro kotvení na závitový kolík či tyče.

(kliknutím na obrázek jej zvětšíte)
Pro kotvení k dřevěným prvkům doporučujeme použít speciální vruty do tesařského kování s půlkulatou nebo plochou talířovou hlavou. Zajistíte tak pevný a esteticky vzhledný spoj.
Rozměrové varianty spojovacích úhelníků naleznete výše.
Technické info - úhelník:

(kliknutím na obrázek jej zvětšíte)
- úhelník je vyroben ze žárově zinkovaného plechu S280GD+Z275
- bez prolisu, nepravidelný tvar
- síla plechu je 3 mm
- díry pro upevnění hřebíkem, vrutem či závitovým kolíkem s maticí o pr. 5 a 11 mm
Přidané komentáře
Přeji dobrý den, chtěl bych se zeptat kolik kg zhruba váží 1ks úhelníku spojovacího pozinkovaného, bez prolisu, nepravidelný 200x60x40 mm (kód 1059004). Předem děkuji za odpověď.